会議室案内

会議室利用のご案内

申込受付 申し込受付は使用日の3ケ月前の月の初日からです。
申込手続 ①ご来社又葉お電話での予約申し込み後、所定の申込書を提出して下さい。FAXでお送り頂いても結構です。
②使用時間には会場の準備や後始末に要する時間を含んでおりますので
使用時間の超過のないようにお申し込みください。
③当日のご利用時間の延長は、前後の空きがある場合に限り可能です(使用料金は、通常の規定料金を申し受け致します)
使用料金 使用料金は使用日の1ケ月前までにお願いします。
■振込銀行
三菱UFJ銀行覚王山支店
普通預金1043958
株式会社旭屋 キャンセル料:
使用予定日の30日前までは10%、15日前までは50%、それ以降は80%のキャンセル料を申し受け致します。
注意事項 会議室及び廊下等は禁煙です。喫煙はエレベ-タ前の休憩テ-ブルの場所またはベランダ喫煙コーナーでお願いします。

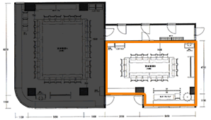
A会議室

A会議室 ロの字形式

ロの字形式

広さ 76㎡(23坪)
利用人数 30名
料金 料金を見る

A会議室 スク-ル形式

スク-ル形式

広さ 76㎡(23坪)
利用人数 45名
料金 料金を見る

ページのトップへ

B会議室

B会議室 ロの字形式

ロの字形式

広さ 43㎡(13坪)
利用人数 18名
料金 料金を見る

B会議室 スク-ル形式

スク-ル形式

広さ 43㎡(13坪)
利用人数 21名
料金 料金を見る

ページのトップへ

ページの先頭へ